
Stravba terária pro kobercovku
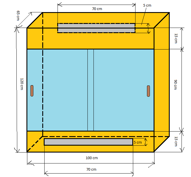
Zdravím, mám v plánu postavit pro svojí kobercovku, která roste jako z vody, nové, větší terárko. Přikládám obrázek s nákresem jak bych si to asi představoval. Zajímá mě názor na rozměry, větrání atd. Děkuji nonikotin.
Velikost je dobrá, ale jak je řešené větrání? na nákresu vidím jakýsi dva obdélníky, ale nevím kam to patří, protože jsou přez čáru, nejsou posunutý v tom nákresu trochu nahoru? A větrání by mělo být i dole kvůli cirkulaci vzduchu.
Je to myšleno na zadni strane nahoře. Radíte tedy že ho mám udělat i vpředu, třeba pod tím sklem?
Tak to bych udělal spíš čerchovaně, ale to už je detail. Ano pod tím sklem ve předu určitě, jinak se dole bude držet furt stejný vzduch a to při vysoké vlhkosti není zrovna značka ideál. A jak to větrání máte v plánu velké? já bych tam dal alespoň 700×50 ale to i na horní straně...tam možná i trochu víc, zas ale né moc aby to nedělalo průvan.
Velikostí si pravě nejsem moc jisty, proto sem píšu o radu. Nikdy jsem terko nestavil a z toho důvodu se tady radím. Dám na vaší radu s rozmerem větrání. Přidávám upravený nákres. Omluvte zpracování, geometrie neni moje silna stranka
A jaký materiál je nejvhodnjsí pro větrání? Děkuji za rady
To uz je lepsie, ale kludne by som spravil tie 5cm pasiky po celej dlzke terarka. Ak mas jedno vetranie hore a druhe dole, tak ti to prievan robit nebude.
Ja pouzivam ako vetranie obycajnu (hlinikovu) sietku proti hmyzu. Ale zalezi na tom, z coho bude terarko, ak OSB, da sa dat napr perforovany plech. Alebo tahokov.
Jo jo Vypadá
![[dscn3262q.jpg]](http://img860.imageshack.us/img860/1751/dscn3262q.jpg)
Takhle sem vyřešil větrání pro mou gonyosomu
Díky díky moc. Podle obrázku tedy nemusí být větrání proti sobě jo? Můžu to vyřešit jako vy dolu a nahoru na jednu stranu?
Ano.
Ale vecsinou je lepsie robit vetranie bud z boku, alebo z predu. Ak budes mat v terarku vyzsiu vlhkost a budes ho mat pri stene, moze ti od vlhkosti zacat stena plesniviet...
http://tomas.mnuk.sweb.cz/Elaphe_guttata/elaphe_gu ttata.htm
Mrkněte se na tohle to by mohlo stačit úplně ke všemu.
Tak tera jsem dokoncil, prikládám foto. Myslíte že je ok? Díky
JJ je OK, jen ty větve bych možná posládal trochu jinak..... Ale to už je na každém jinak...
Kolik si dal za ty větrací mřížky a kde si je koupil ? Já je viděl v OBI za nekřesťanský prachy a pak na netu za víc jak poloviční ceny xD
BTW když už se ptám na ty mřížky .... do terka pro vousatice o rozměrech 135x55x68 dám boční větrací mřížku 13,5 x 30 cm a stropní mřížku mam dát 60x10 cm a nebo 100x10 cm ?
http://www.sklipkyholizardi.wz.cz/obrazky/terarium 2navrh.jpg
vetrání radši větší, zakrýt a zmenšit se dá vždy celkem jednoduše ale zvětsovat ho už je o něco horší, aspoň to sem si vyčetl já :)
Já za ně nedal ani korunu...to mě sehnal jeden můj dobrý známý, kde je on vzal to už je záhada
Jedna me stala 90,- v jednom malým krámku poblíž prahy. v obi je maji drahý, sice s hliníku ale drahy. Tyhle sou z plasu a myslim ze by mohli stacit.
kdyz oni ty kovovy maj supr vzhled ... ale v OBI jsou ty ceny jiný no xD
Já videl hlinikový jen bílý i v obi. temer stejný jako tyhle plastový. Koupil sem je v měšicích u prahy v takovym malým krámku kde se dá sehnat lecos. Btw terko už je obydleno. Prikladam fotku
Jeden blbej dotaz. V tomhle novym terárku mam větší mísu s vodou a prvně se mi do ní had vykadil. Jde mi o to, jestli se voda musí pak hned vyměnit nebo jestli stačí jen vyndat exkrementy a vodu nechat. Díky
Rozhodně vyměnit i vodu, a terárko vypadá pěkně
Vyměnit. Taky bys asi nepil vodu, ve který plavalo hovno i kdybys ho vyndal
No a? Co je na tom...
Vymacka hovno vo vode a hadovy bude tvrdit, ze tam ma omacku...
Rozmyslaju dnes este niektory ludia?
Pravda. Mysleni uz je zastarala trchnologie.,
OK OK, vyměněno. Chtěl bych se zase zeptat ale na jinou věc. Objevili se mi v terárku malinke mušky. Vadí to nějak hodne chovanci či to nemusim nijak řešit. Vyndal jsem kytky, ze kterých si myslim, že by to mohlo být, tak uvidíme. Díky za odpovědi